科技成就品质
浙江新舜风机有限公司—上虞风机生产基地
13906850063
产品中心 首页 > 产品中心  
产品系列
产品展示
XINSHUN ® SHAOXING XINSHUN FAN CO.,LTD.
厨房排油烟风机系列 » CDT系列低噪声柜式离心风机
  CDT系列低噪声柜式离心风机

CDT系列柜式低噪声离心风机采用型材框架和镀锌板箱体两种形式,双吸前向多翼式离心叶轮,电机外置E式传动。具有风量大、噪声低、结构牢固、运行平稳、外型美观,易于保养、维修等特点。适用于单位食堂、饮食店、宾馆酒楼等厨房所需大风量的排油烟场所,及厂矿企业、民用建筑等工程的送排风。

 
镀锌板箱体
型材框架冷板箱体

性能参数

机号

转速

(rpm)

风量

(m3/h)

风压

(Pa)

功率

(kW)

噪声

dB(A)

15

700

4500-8250

303-316

2.2-4

61

800

5000-9500

398-413

62

850

5250-10050

444-465

3-4

63

900

5500-10500

497-536

64

1000

6080-12050

619-655

5.5-4

65

1050

6384-12653

682-722

66

18

600

6030-11030

301-308

2.2-4

62

700

6550-13050

405-423

3-4

63

750

7500-13900

468-478

4-4

64

800

8150-14950

532-557

5.5-4

64

900

8850-16550

670-693

7.5-4

65

940

9239-17278

730-755

66

20

550

7900-13750

340-312

3-4

66

600

8750-14950

408-370

4-4

67

650

9350-16250

475-438

68

700

10050-17420

556-403

5.5-4

68

800

11250-20540

717-668

7.5-4

69

840

11813-21567

790-736

11-4

70

22

550

9850-17250

359-342

4-4

68

600

11050-19500

434-388

5.5-4

68

650

11970-20250

507-463

69

700

12830-21940

588-545

7.5-4

70

800

14950-25500

774-747

11-4

71

840

15698-26775

850-790

72

25

500

14980-25500

371-374

5.5-4

70

550

16420-27890

452-449

7.5-4

71

600

18000-30050

540-526

11-4

71

650

19500-33080

630-632

72

700

21000-35950

731-723

15.0-4

73

740

22197-37999

817-723

18.5-4

74

28

450

19500-30050

377-376

7.5-6

71

500

21030-33980

464-462

11-6

72

550

23970-37050

563-552

72

600

25650-40570

671-658

15-6

73

650

28030-43850

796-776

18.5-6

74

680

29310-45860

871-849

22-6

75

30

400

21000-35480

350-355

7.5-6

72

450

23850-39060

542-446

11-6

72

500

26810-44110

555-557

15-6

73

550

28530-48030

666-630

18.5-6

74

600

31050-53960

787-802

22-6

75

640

33130-57575

896-913

30-6

76

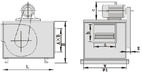
CDT型外形尺寸表(单位:mm)

机号

外形尺寸

出风口

进风口

基础高H1

H

L

a

b

A

B

A

B

W

W1

15

923

860

1080

860

980

440

440

710

710

63

18

1023

960

1280

960

1080

500

490

810

810

63

20

1123

1060

1360

1060

1180

530

550

910

910

63

22

1240

1160

1480

1160

1320

580

610

1010

1010

80

25

1360

1280

1700

1280

1440

630

680

1130

1130

80

28

1500

1360

1800

1360

1520

680

770

1180

1180

80

30

1600

1580

1920

1500

1680

770

930

1330

1350

80

:机号为叶轮直径分米数,A型体积总高度还需补加电机高度,总宽度补加皮带罩的宽度.

 
一、消防排烟系列风机
1、HTFC系列低噪声消防通风柜式风机
2、HTF(B)系列消防高温排烟混流风机
3、HTF(A)系列消防高温排烟轴流风机
二、管道(增压)送排系列风机
1、DXG(GDF)系列低噪声矩形管道风机
2、DBF系列低噪声离心式风机箱
3、SJG(GXF)系列管道斜流风机
4、SWF系列高效低噪声混流风机
5、HL3-2A系列高效低噪声混流风机
6、HLF系列低噪声混流式风机箱
7、SDF型加压轴流风机
8、GLZ型离心式轴流送风机
三、侧壁、吸顶排风系列风机
1、WEXD系列边墙风机
2、WBXD系列板壁式轴流风机
3、DFBZ系列低噪声方形壁式轴流风机
4、DZ系列低噪声轴流风机
5、T35系列轴流式通风机
6、BLD系列低噪声吸顶式房间通风器
7、BLB系列低噪声板壁式排风机
四、SDS系列隧道射流风机
五、屋顶通风系列风机
1、RTC铝制屋顶风机
2、DWT-Ⅰ型低噪声轴流式屋顶排风机
3、DWT-Ⅱ型低噪声离心式屋顶排风机
4、DWT-Ⅲ型低噪声离心式屋顶排风机
5、DWT-Ⅳ型无电机涡轮式屋顶排风机
6、WZT型屋顶自然通风器
六、离心风机系列
1、4-72、4-79系列离心风机
2、9-19、9-26系列高压离心风机
3、DDL系列单吸式低噪声离心风机
4、KDF系列空调风机
5、C4-73、C6-48型排尘离心风机
七、其它风机、防火阀、排烟阀、消声器
1、YDF系列喷流诱导风机
2、防火阀、排烟阀
3、消声器、消声弯头
八、风机气功性能试验
九、风机选用说明
十、厨房排油烟风机系列
1、CDZ系列低噪声轴流风机
2、CDF-Ⅰ型多翼式离心风机
3、CDF-Ⅱ型后变式离心风机
4、CDF-Ⅲ型低噪声单吸箱式离心风机
5、CDT系列低噪声柜式离心风机
十一、机组设备配套风机系列
1、KDF、KKF系列空调离心风机
2、DFW、DFA系列多翼式离心风机
3、BF系列变压器专用轴流风机
4、LZF系列蒸发式冷凝器专用轴流风机
5、LTF系列冷却塔专用轴流风机
6、LFF系列冷库专用轴流风机
十二、SLF系列湿帘冷风机
十三、抗震支架
十四、冷却塔系列
浙江新舜风机有限公司 © 2020-2024  版权所有      技术支持:天盛网络      浙ICP备2023014410号-1      浙公网安备33060402001737号